The Coach House - The Brief
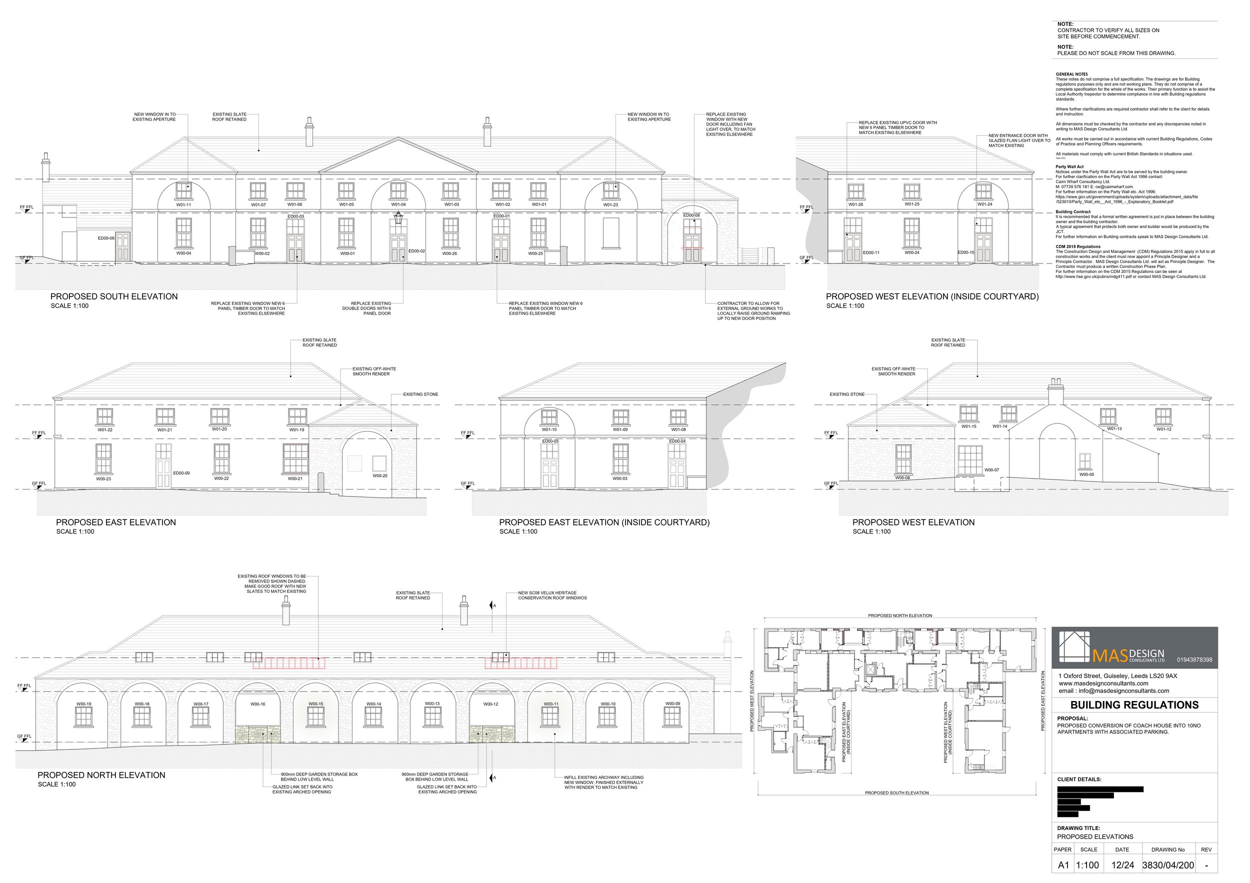
The Coach House project is a detached Grade II Listed former stable building which we are converting from existing 30 hotel bedrooms into 10no. two/ three-bedroom apartments which will provide ancillary accommodation to the main Historic Grade 2 listed Country House Hotel, Owston Hall.
The Coach House will offer guests an alternative type of accommodation from a standard hotel room, as they will be fully equipped apartments with separate bathrooms, kitchen and living spaces. Planning is already approved for this scheme and works are due to commence on site today!
This project is under construction at the moment. Keep your eyes peeled for more updates on this project!
